← Go Back
Clapham Old Town, SW4
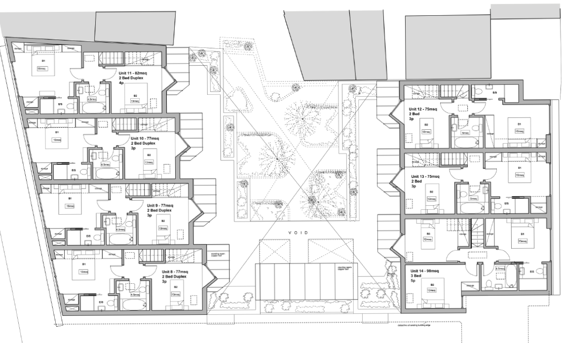
Purespace Group is currently undertaking a feasibility study to replace an existing dilapidated building in the heart of Clapham Old Town with a pair of new multi-functional mixed use residential led buildings.
The proposed scheme is clustered around south facing gardens providing pleasant private aspects for the new proposed flats, as well as a new communal courtyard. A linear east-west space has been introduced to create convenient spaces for cycle storage and access to a private residential lobby and a new vertical circulation core.
The mews aims to create semi-private & shared spaces in the development which will allow light into the ground floor as well as opportunities for more private aspects and views from the communal areas. The mews and garden courtyard also aims to create a shared neighborly buffer for the number of residential flats within the development.
Status: Feasibility Study
Further Details to Follow...
